
教科センター方式の板橋区立赤塚第二中学校ー地域の文化資産としての価値と展望ー
1. はじめに
板橋区立赤塚第二中学校(以下、赤塚二中)は、アートギャラリーの趣のある美しいデザインの学校である(図1)。その美しさの秘密の一つは、「教科センター方式」による洗練された学習空間のデザインである。もう一つは、校内にたくさんの木が使われており、さながら「木の学校」にいるような温もりのあるデザインである。本研究は、これらのデザインの持つ意味について考察し、赤塚二中の地域の文化資産としての価値を更に高めるための方策を提言するものである。
2. 基本データと歴史的背景
名称 東京都板橋区立赤塚第二中学校
所在地 東京都板橋区成増3-18-1
創立 昭和22年(1947年)
改築 平成25年(2013年)竣工
延床面積 約10,190.9㎡(地下1階・地上3階)
生徒数 606人 令和7年(2025年)5月1日現在
板橋区では平成21年度に「新しい学校づくり」のプロジェクトが発足した。多様な学習形態に対応できる高機能・多機能な教育空間の中で生徒が主体的・協働的に学ぶ学校づくりを進める方針が立てられた。さまざまな検討の末、改築予定の中学校には「教科センター方式」が導入されることになり、赤塚二中がその第一号となった。続いて中台中学校、上板橋第二中学校が「教科センター方式」に改築された。
3. 積極的に評価する点
赤塚二中は「教科センター方式」が導入された「ハイテクの学校」であると同時に、スギやヒノキなどの木材が多く使われた「木の学校」でもある。この二つのコンセプトが融合し、洗練された造形美を醸し出している。
3-1. 「ハイテクの学校」の機能的な美しさ
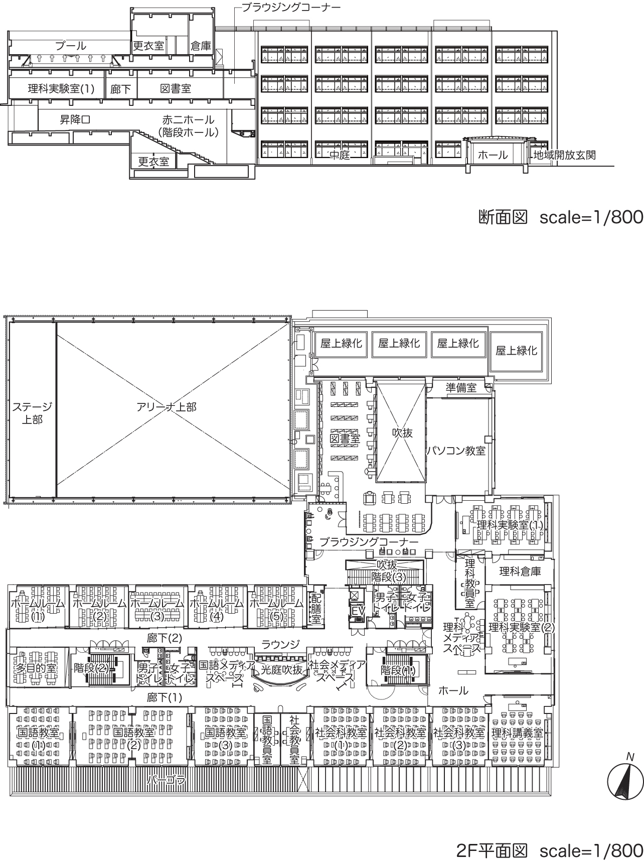
「教科センター方式」とは、教科ごとに専用の「教科教室」(註1)を設け、生徒が時間割に応じて自ら「教科教室」に移動して授業を受ける教育システムである。教科ごとに「教科教室」、「学びの広場」(註2)(図4)、「教科教員室」(註3)そして広い廊下が隣接して設置され、一つの教科エリアとなっている(図3)。
各教科エリアは、生徒の自主的・協働的・創造的な学習(註4)が円滑に行われるように機能的で開放的な空間となっている。例えば、「教科教室」と「学びの広場」「教科教員室」を区切りのない一体的で広大な学習空間に変えることができる。教科教室と廊下の間の扉は可動式の大扉(4連引き戸)となっており、片側の一箇所に集めると、教室と廊下を一体化した広い学習スペースにできる。さらに「学びの広場」ともつながるので、更に開放的な学習空間が広がる(図5)。授業のねらいに応じて空間を閉じたり、広げたりできるので、一斉学習やグループ学習、ペア学習、個別学習、ポスターセッションなど、学習のねらいに応じて多様な学びが可能となる。
3-2. 「木の学校」の有機的な美しさ
赤塚二中は、校内の随所に日光市から寄贈されたスギやヒノキ等の木材が使われている(註5)。生徒が、木材の持つ香りや肌触りにより、心理的に安定して創造的な学びに取り組めるようにとデザインされたのである。
昇降口から入ると700人分の生徒の下足箱(図6)が並んでいる。全て無垢のスギの赤身材で作られている。地上と地下を結ぶ「大階段」(図1)には500本のスギの丸太が使われている。2階の図書室の本棚や机、椅子もスギの赤身材が使われている(図7)。「教科の広場」やホームルームの天井には表示用にもなる木製のルーバーがたくさん設置されており(図4)(図8)、木の柔らかさが生徒の心を穏やかに包んでいる。
3-3. 「大階段」の多目的性
「大階段」(図1)は機能的な美しさと有機的な美しさが融合した「ステア・コモンズ」(註6)となっている。スギの丸太が組み込まれた空間は100人以上が着座できる憩いや集いの場となる。また、時には、種々のプレゼンテーションやパフォーマンスが行われる舞台にもなる。200インチのスクリーンや照明も設置されており、アートシアターにもなる(図2) 。また、「大階段」の両側面には、卒業生の記念プレートが毎年はめ込まれていき、中学校生活の記憶が集積されるメモリーホールでもある。
3-4. 「美しいデザイン」の持つ意味
赤塚二中の「機能的な美」と「有機的な美」が融合したデザインの美しさは、単に視覚的な美しさをねらったものではない。これらのデザインは、黒板とチョークだけの講義形式の授業から脱却し、多様な学習形態に対応できる高機能・多機能な教育空間の中で生徒が主体的・協働的・創造的に学ぶ学校づくりが必要であるという改築のコンセプトが基盤となった理論的な裏付けのあるものである。そのコンセプトを具現化するための施設・設備の在り方を追究した結果生まれた「知」の結晶なのである。
4. 他の同様な事例と比較して特筆される点
板橋区内では、赤塚二中に続き建設された中台中と上板橋二中も「教科センター方式」を導入している(註7)が、空間構成や素材の選択において、赤塚二中との違いがある。
4-1 「木の学校」
中台中・上板橋二中も現代的な設備を備えるが、構造材・仕上げ材は近代的な素材が多く、木材の使用は限定的であり、装飾的である。赤塚二中では、多くの木材の使用が心理的・教育的な面から綿密にデザインされ、温かみと落ち着きのある学習環境を形成している。「木の学校」という有機的なデザインと「ハイテクの学校」という機能的なデザインが見事に融合している。
4-2「大階段」
赤塚二中の「大階段」は、憩い・交流・発表・表現・鑑賞など創造的な多目的活用ができる「ステア・コモンズ」であり、同校のシンボル的な空間である。中台中・上板橋二中には同規模・同機能の空間はない。
4-3「ホームルーム」
中台中・上板橋二中は「ホームルーム」の代わりに「ホームベース」が設けられている。「ホームベース」は、教科教室に隣接して設けられている30㎡程度のスペースである。学級の生徒の個人ロッカーと椅子・テーブルが数脚が置かれ、そこを学級の拠点とする。全員の着座が必要な授業の時は、隣接の教科教室で行う(註8)。
一方、赤塚二中は、教科教室とは独立したホームルームを設けている(図8)。生徒全員が着座できる生活拠点としての居場所を確保しており、心の安定を支えている。また、ホームルームは、様々な教科でグループ学習等の学習空間としても活用される。
これらの点は、板橋区内だけでなく、他地区の学校(註9)においても見られない特筆すべき点である。
5. 今後の展望
赤塚二中は「学び合うコミュニティー」の拠点となることが重要である。アートギャラリー的な趣を活かし、「共有・協働・発信」をキーワードとし、「学びの広場」や「大階段」を地域との共創的な空間として位置付ける取り組みが重要となる。
5-1. 地域との共有
「学びの広場」は、生徒の学習活動の成果等の展示を通して学校の教育活動について地域に公開し理解してもらう場として重要である。また、近隣の成増図書館やいたばしボローニャ絵本館(註10)、郷土資料館等と連携し、地域の文化や国際交流に関する図書や資料を置き、地域の人々が生徒と一緒に気軽に閲覧し、学びを共有できるようにすることが重要である。
5-2. 地域との協働
防災や防犯、緑化などの地域の問題について、総合的な学習の時間や生徒会活動等において生徒は地域の町会や関係機関と協働して取り組むことが重要である。その協働の様子や成果については、学校公開の日等に「学びの広場」や「大階段」において保護者や地域の人々に発信する。
5-3. 地域への発信
「学びの広場」や「大階段」においては、どちらもインスタレーションの手法を活用して立体的に表現するなど、分かりやすく、見やすい発信の方法を工夫する必要がある。そして、その内容については意見や感想をもらうことが大切である。
また、「大階段」は、これまでも各部活動が演劇や音楽、映像などを発表してきた(註11)が、今後は階段という特性を更に活かし、学校公開日等の時に、来校された地域の人々が、階段の往来の途中で「ちょこっと立ち寄り」気軽に鑑賞や参加ができるような身近な文化的イベントを生徒会が中心になって開催していくことが重要である。
6. まとめ
建物は、デザインが美しくても、活用しなければただの器である。赤塚二中は、世代が変わっても、その美しいデザインの根底にある意味を踏まえ、地域と共に特色ある教育活動を展開し、「学び合うコミュニティー」の拠点となることが重要である。そのことが地域の文化資産としての価値を更に高めることにつながる。
-
(図1)「大階段」:1階昇降口前ホールと地下1階体育館前ホールを結ぶ動線であるが、創造的な多目的活用ができる「ステア・コモンズ(Stair Commons)」である。 (写真:板橋区新しい学校づくり研究会 著『新しい学校づくり、はじめました。―教科センター方式を導入した、東京都板橋区立赤塚第二中学校の学校改築ドキュメント―』、フリックスタジオ、2014年、p.68、撮影者 新 良太)
-
(図2)「大階段」:高い天井、階段状の座席で200インチのスクリーンで映像が楽しめる。 (写真:板橋区新しい学校づくり研究会 著『新しい学校づくり、はじめました。―教科センター方式を導入した、東京都板橋区立赤塚第二中学校の学校改築ドキュメント―』、フリックスタジオ、2014年、p.69、撮影者 新 良太) -
(図3)校舎断面図と2階平面図:図面内の「赤二ホール」「メディアスペース」は、現在はそれぞれ「大階段」「学びの広場」と呼ばれている。(図版:板橋区新しい学校づくり研究会 著『新しい学校づくり、はじめました。―教科センター方式を導入した、東京都板橋区立赤塚第二中学校の学校改築ドキュメント―』、フリックスタジオ、2014年、p.30、撮影者 新 良太) -
(図4)社会科の「学びの広場」:他の教科の「学びの広場」も同様の造りである。天井のルーバーには学習の資料や成果を下げることができるなど、立体的な展示に活用できる。(写真:板橋区新しい学校づくり研究会 著『新しい学校づくり、はじめました。―教科センター方式を導入した、東京都板橋区立赤塚第二中学校の学校改築ドキュメント―』、フリックスタジオ、2014年、p.3、撮影者 新 良太) -
(図5)「教科教室」と「学びの広場」:廊下を挟み、教科教室と学びの広場を一体的に使って協働学習が展開される。(写真:板橋区新しい学校づくり研究会 著『新しい学校づくり、はじめました。―教科センター方式を導入した、東京都板橋区立赤塚第二中学校の学校改築ドキュメント―』、フリックスタジオ、2014年、p.75、撮影者 新 良太) -
(図6)「生徒用の下足箱」:日光産の無垢のスギの赤身材で作られている。(写真:板橋区新しい学校づくり研究会 著『新しい学校づくり、はじめました。―教科センター方式を導入した、東京都板橋区立赤塚第二中学校の学校改築ドキュメント―』、フリックスタジオ、2014年、p.81、撮影者 新 良太) -
(図7)「学校図書館(図書室)」:日光産の無垢のスギの赤身材がふんだんに使われている。(写真:板橋区新しい学校づくり研究会 著『新しい学校づくり、はじめました。―教科センター方式を導入した、東京都板橋区立赤塚第二中学校の学校改築ドキュメント―』、フリックスタジオ、2014年、p.113、撮影者 新 良太) -
(図8)「ホームルーム」:学級の全員の生徒が着座できる。(写真:板橋区新しい学校づくり研究会 著『新しい学校づくり、はじめました。―教科センター方式を導入した、東京都板橋区立赤塚第二中学校の学校改築ドキュメント―』、フリックスタジオ、2014年、p.96、撮影者 新 良太)
参考文献
註
⑴ 「教科教室」:教科専用の部屋である。生徒数に応じて複数の教室(例えば国語科教室A、同B、同C)が用意される。それぞれの教室に赤塚二中特注の大型の可動式電子黒板や書画カメラなどのICT機器が充実している。
⑵ 「学びの広場」:各教科専用のオープンスペースである。教科関係の資料や情報の本棚が置かれる。また、天井には木製の円形のルーバーが設置され、生徒の作品や学習成果を立体的に掲示・展示できる。ポスターセッションなど発表・表現の場でもある。教科の自習スペースにもなる。全ての学年の生徒が自由に立ち寄って閲覧できる。テーブルと椅子もあり、休み時間などに一息ついたり、生徒同士で授業の内容を確認したりすることもできる。
⑶ 「教科教員室」:同じ教科の教員が共同で使う部屋。教材の作成や保管、学習評価のまとめ等を効率的に行うことができる。また、授業時間以外などの生徒の学習相談にも応じやすくなる。教員は、各教科のエリア内にある「教科教室」「学びの広場」「教科教員室」をトータルに管理し、教員同士も教科の指導法についての打ち合わせや意見交換の機会が多くなるので、これまで以上に同教科の教員の協働や教科マネジメントの意識が高まることが期待される。
⑷ 「自主的・協働的・創造的な学習」:問題解決的な活動が発展的に繰り返されていく探究的な学習のことである。問題解決学習において「生徒は、1「課題の設定」:日常生活や社会に目を向けた時に湧き上がってくる疑問や関心に基づいて、自ら課題を見付ける。2「情報の収集」:そこにある具体的な問題について情報を収集する。3「整理・分析」:その情報を整理・分析したり、知識や技能に結び付けたり、考えを出し合ったりしながら問題の解決に取り組む。4「まとめ・表現」:明らかになった考えや意見などをまとめ・表現し、そこからまた新たな課題を見付け、更なる問題の解決を始める、といった学習活動を発展的に繰り返していく(文部科学省「中学校学習指導要領(平成29年告示)解説 総合的な学習の時間編」参照)。教科の学習のみならず、地域の問題について地域の人々と協働して解決に取り組む活動においても、この探究的な学習のサイクルを基本とすることが肝要である。
⑸ 板橋区と日光市との「みどりと文化の交流協定」:「板橋区は、栃木県栗山村(現在は日光市)と長く友好関係があり(昭和58年「みどりと文化の交流協定」) 、平成5年、交流10周年記念事業として、そこの12. 7haの森を「板橋区の森」とすることができた(分収造林の権利を譲渡)。また、「板橋区は学校整備で木材を使用する際は日光市産木材の使用に努め、また、日光市は板橋区に対して環境教育の機会と場の提供に努める」とした内容の「みどりと文化の交流協定にもとづく木材の使用と環境教育についての覚書」を平成23年10月に日光市と締結するに至った。赤塚第二中学校の改築に際しても、日光市から木の提供があり、市内の製材所、家具製作所での加工までお願いすることができた。」(板橋区新しい学校づくり研究会 著『新しい学校づくり、はじめました。―教科センター方式を導入した、東京都板橋区立赤塚第二中学校の学校改築ドキュメント―』、株式会社フリックスタジオ、2014年、p.117 板橋区長の坂本健氏の談話より抜粋)
⑹ 「ステア・コモンズ」:コモンズ(Commons)とは、人々が共有し、相互に関わり合いながら利用する共同的な空間や資源を指す概念である。赤塚第二中学校の「大階段」はこの具体例であり、生徒の学びと交流を支える共有空間として機能している。本研究では、このような多目的に使うことができる階段状の共有空間を「ステア・コモンズ(Stair Commons)」と呼ぶ。
⑺ 中台中学校と上板橋第二中学校の「教科センター方式」:
・板橋区立中台中学校:板橋区公式ホームページ「東京都板橋区立中台中学校 学校改築」
https://www.city.itabashi.tokyo.jp/_res/_page_
(最終閲覧 2025年12月24日)
・板橋区立上板橋第二中学校:板橋区公式ホームページ「新しい学校づくりを進めています 第2
回 教科センター方式の導入」
https://www.city.itabashi.tokyo.jp
(最終閲覧 2025年12月24日)
⑻ 「ホームベース」:板橋区立中台中学校と上板橋第二中学校の「ホームベース」は、教科教室と繋がっているロッカールームである。生徒全員が着座できるスペースはないので、学級活動や総合的な学習の時間、道徳等の授業や給食は「ホームベース」では行うことができない。そのため、隣接の教科教室を「ホームルーム」として使う。例えば、1年A組は社会科教室Aをホームルームとして使う。従って、社会科教室Aの出入り口の戸の上には「社会科教室A」と「1年A組」という表示プレートが2枚並んで下げられている。
⑼ 板橋区以外の「教科センター方式」として有名な学校:
・大洗町立南中学校(茨城県東茨城郡大洗町)
https://www.minami-j.oarai.ed.jp/ (最終閲覧 2025年12月15日)
・福井市立至民中学校(福井県福井市)
https://shimin-web.edumap.jp/ (最終閲覧 2025年12月15日)
・坂井市立丸岡南中学校(福井県坂井市)
https://www.maruokaminami-j.ed.jp/ (最終閲覧 2025年12月15日)
・千葉市立打瀬中学校(千葉県千葉市美浜区)
https://www.city.chiba.jp/school/jhs/054/index.html (最終閲覧 2025年12月15日)
・同志社中学校・高等学校(京都府京都市左京区)
https://jhs.js.doshisha.ac.jp/ (最終閲覧 2025年12月15日)
この中でも同志社中学校の「教科センター方式」は、教育理念の明確さと空間構成の一貫性で高く評価できる。同志社中は、大学附属としてのリソースを活かし、ICT環境と専門教室群を中心に、知的探究を支える学習空間を整備している。また、生徒の生活空間にも配慮し、「ホームベース」の広く開放的である点は優れている。しかし、赤塚二中における機能的な「ハイテクの学校」と有機的な温かみのある「木の学校」というコンセプトの融合、「大階段」という多機能で創造的な空間、全員が着座できる「ホームルーム」の設置という特徴は、他のどの学校にも見られない特筆すべき点である。
(10) 「ボローニャ絵本館」:北イタリアのボローニャから寄贈された絵本を中心に、世界約100の国と地域、3万冊、80言語の資料を所蔵している海外絵本の図書館。
館名の由来:ボローニャ市で毎年春に開催される児童書専門の見本市「ボローニャ児童図書展」事務局から寄贈された絵本が主な蔵書であることにちなんでいる。
開館の経緯:板橋区とボローニャ市の交流の始まりは、1981年に板橋区立美術館で「ボローニャ国際絵本原画展」を開催したことがきっかけで、それ以来、絵本を通じて交流を深めてきた。「板橋区の子どもたちにも素晴らしい海外絵本を見せたい」という板橋区の願いが伝わり、1993年から「ボローニャ児童図書展」事務局から海外絵本の寄贈が始まった。それから11年後の2004年9月15日に、これまで寄贈された海外絵本をいつでも直接手に取れる施設として絵本館が開館した。2021年3月28日、板橋区平和公園内にある板橋区立中央図書館に併設移転した。
https://www.city.itabashi.tokyo.jp/library/bologna (最終閲覧 2025年12月15日)
(11) 「大階段」の活用例:吹奏楽部による昼休みや放課後のミニコンサート、演劇部による寸劇、茶道部によるお手前の披露、柔道部・剣道部による型の演技、映画同好会によるショートムービーの上映など。
参考文献
・板橋区新しい学校づくり研究会 著『新しい学校づくり、はじめました。―教科センター方式を導入した、東京都板橋区立赤塚第二中学校の学校改築ドキュメント―』、株式会社 フリックスタジオ、2014年
・佐藤学 著「学びの共同体の創造ー探究と協同へー」、小学館、2021年
・佐藤学 著「学校の挑戦ー学びの共同体を創る」、小学館、2006年
参考資料(WEB)
・五十嵐卓司「『教科センター方式』を通して『思考力・判断力・表現力』を育む実践とその考察 : 校舎の運営方式と生徒の自発性を高める教科教育との関係性の考察」『日本教育学会大會研究発表要項』、第71巻、2012年 J-GLOBAL(最終閲覧 2025年12月24日)
・大屋信孝「教科教室型(教科センター方式)中学校における生徒の居場所選択と空間構成」建築・仕上学会論文報告集、2022年
https://www.jstage.jst.go.jp/article/aijt/28/69/28_780/_pdf
(最終閲覧 2025年12月24日)
・鈴木重夫「教科教室制運営における教職員の協働関係の構築について」私学研究会、2015年
https://www.shigaku.or.jp/old/kenkyu/kiyo47/kiyo47_07.pdf
(最終閲覧 2025年12月24日)
・松木健一「教科センター方式の学校建築に関する考察」、福井大学リポジトリ、福井大学大学院教育学研究科、2010年
https://u-fukui.repo.nii.ac.jp/record/26093/files/AA12470517-03-011.pdf
(最終閲覧 2025年12月24日)
・板橋区公式ホームページ「東京都板橋区立中台中学校 学校改築」
https://www.city.itabashi.tokyo.jp/_res/_page_
(最終閲覧 2025年12月24日)
・板橋区公式ホームページ「新しい学校づくりを進めています 第2回 教科センター方式の導入」
(板橋区立上板橋第二中学校について)
https://www.city.itabashi.tokyo.jp/kyoikuiinkai/joho/1053640/1053967.html
(最終閲覧 2025年12月24日)
・板橋区公式ホームページ「いたばしボローニャ絵本館」
https://www.city.itabashi.tokyo.jp/library/bologna (最終閲覧 2025年12月24日)
・同志社中学校ホームページ「『教科センター方式』とは」『同志社中学校 教科センター方式の学び』
https://jhs.js.doshisha.ac.jp/learning/center/ (最終閲覧 2025年12月15日)
・茨城県大洗町立南中学校ホームページ「アクティブ・ラーニングに対応した自由度の高い空間」
https://www.city.iwaki.lg.jp (最終閲覧 2025年12月15日)
・千葉市立打瀬中学校(千葉県千葉市美浜区)
https://www.city.chiba.jp/school/jhs/054/index.html
(最終閲覧 2025年12月15日)
・福井市立至民中学校(福井県福井市)
https://shimin-web.edumap.jp/shimin-web.edumap.jp
(最終閲覧 2025年12月15日)
・坂井市立丸岡南中学校(福井県坂井市)
https://www.maruokaminami-j.ed.jp/maruokaminami-j.ed.jp
(最終閲覧 2025年12月15日)
・文部科学省ホームページ「新しい学校づくりを進めています」
https://www.mext.go.jp/content/20250310-mxt_syoto01-000040534_3.pdf.pdf
(最終閲覧 2025年12月24日)
・文部科学省「新しい時代の学びを実現する学校施設の在り方について」(最終報告)」、2022年
https://www.mext.go.jp/b_menu/shingi/chousa/shisetu/044/toushin/1414523_00004.htm mext.go.jp+2dinf.ne.jp+2 (最終閲覧 2025年12月24日)
・国立教育政策研究所「新しい時代の創造的な学習空間づくり」、2022年
https://www.nier.go.jp/shisetsu/html/pdf/20220209_01_report.pdf
(最終閲覧 2025年12月24日)
・日本建築学会「教科・教科メディアスペース・オープンスペースを組み合わせた教科センター方式」『IEEネット 教室・教室まわりの計画を考える』、2019年
https://www.iee-net.co.jp/download?file_id=115835 (最終閲覧 2025年12月24日)
・文部科学省「中学校学習指導要領(平成29年告示)解説 総合的な学習の時間編」、2017年7月
https://www.mext.go.jp/a_menu/shotou/new-cs (最終閲覧 2025年11月15日)